Werktekeningen

Ik heb verschillende werktekeningen gemaakt voor school voor het vak werkvoorbereiding. Ik maak deze werktekeningen met behulp van Autocad.

Dit is een werktekening van een tv-kastje dat ik moest maken. Het is de eerste werktekening die ik in Autocad heb gemaakt, dus het heeft zeker nog wel wat punten waarop het beter kan.

werktekening
werktekening

Dit een werktekening die ik heb gemaakt voor het tafeltje dat ik in de derde periode maak. voor deze werktekening heb ik beter begrepen hoe je zo'n werktekening in Autocad kan plotten.

Dit is een werktekening van een nachtkasje die ik later op school ook heb gemaakt.

werktekening
werktekening

Dit is een werktekening van een stoel die ik later op school ook zou gaan maken maar ik heb het ontwerp later nog wat aangepast.

Dit is een werktekening van een zij kastje van een keuken met nog ruimte voor een aanrecht blad of bevestigd te worden boven op het kastje.

werktekening
werktekening werktekening werktekening werktekening werktekening werktekening werktekening werktekening werktekening werktekening werktekening werktekening werktekening werktekening werktekening werktekening werktekening werktekening werktekening

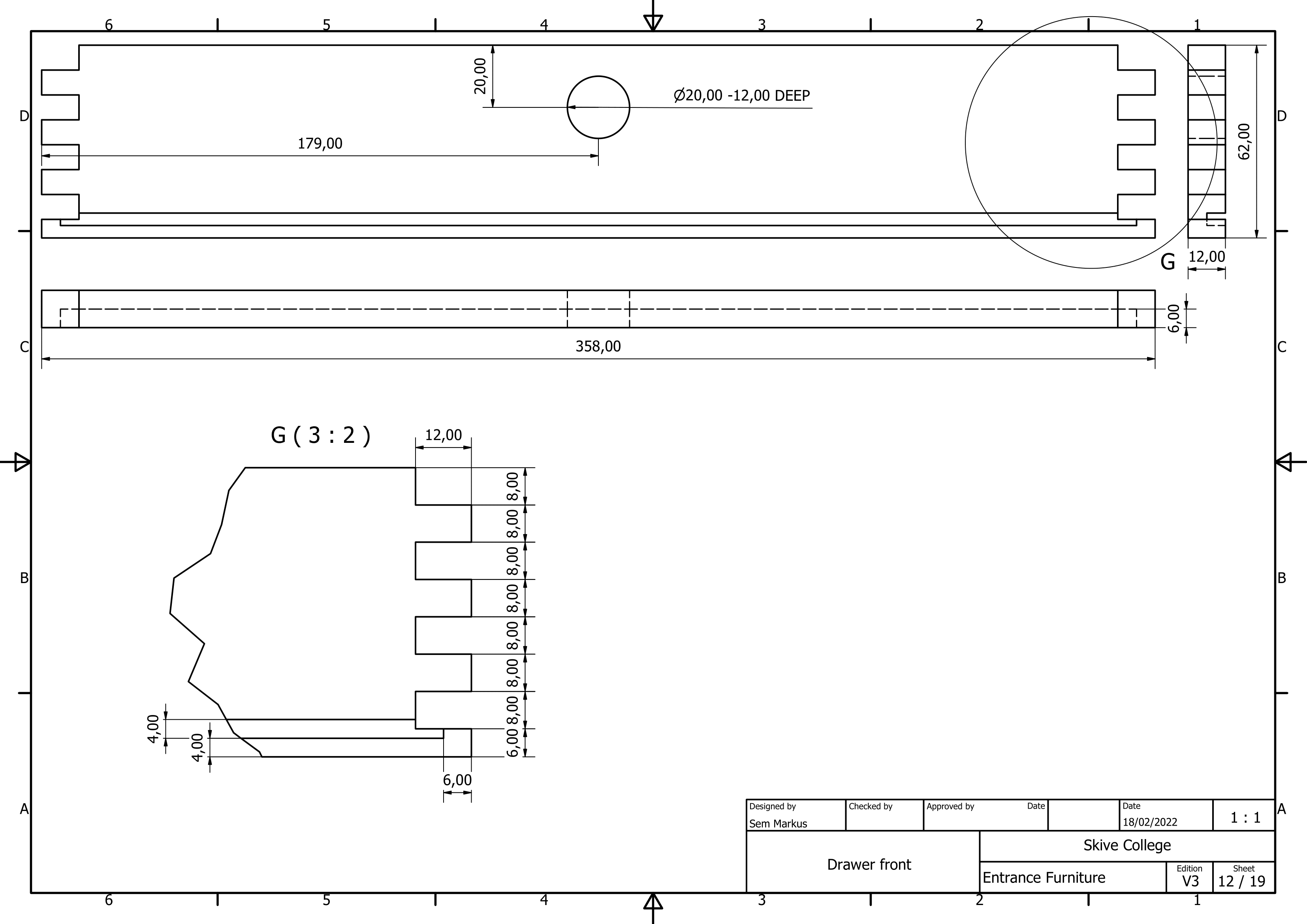
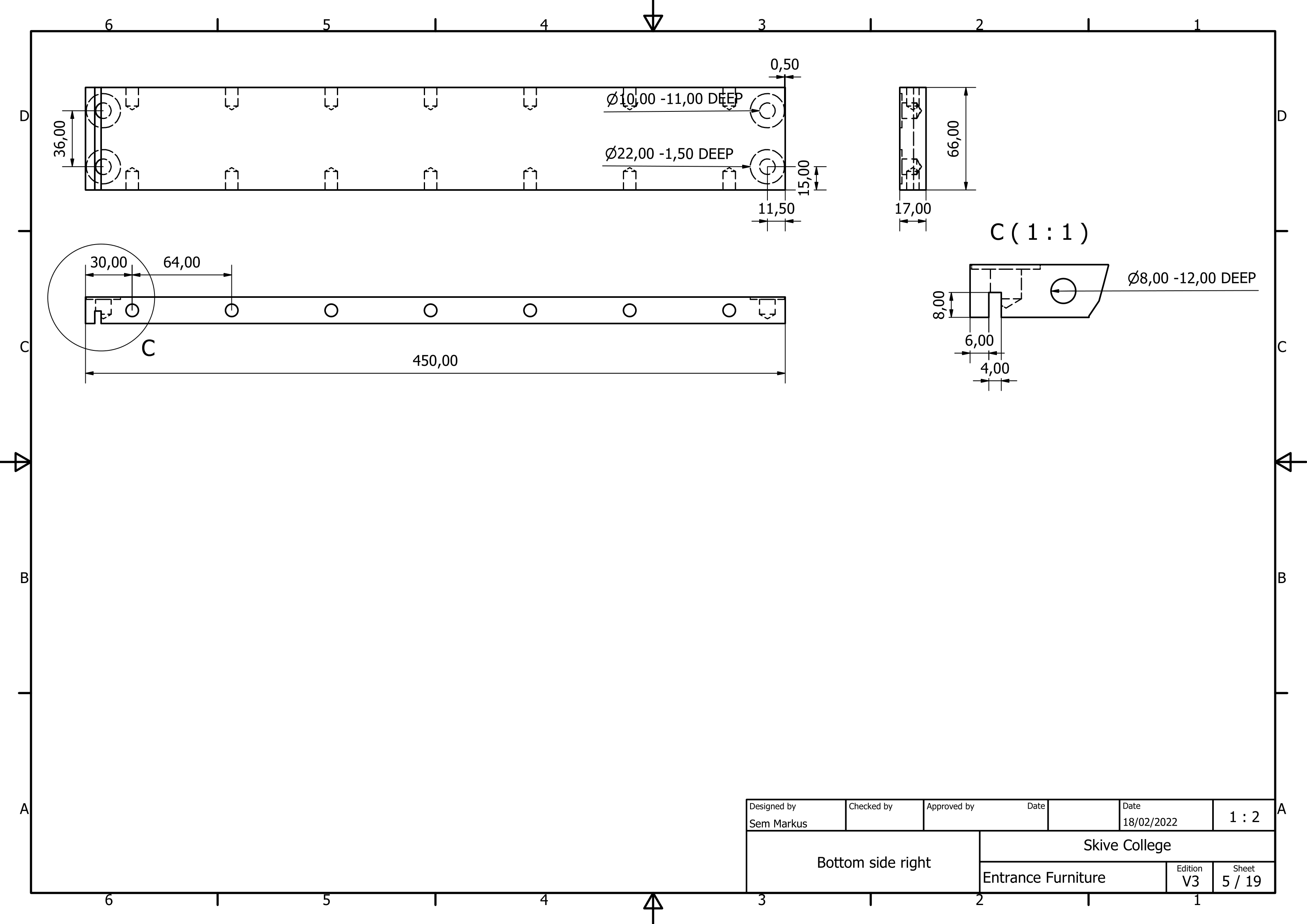
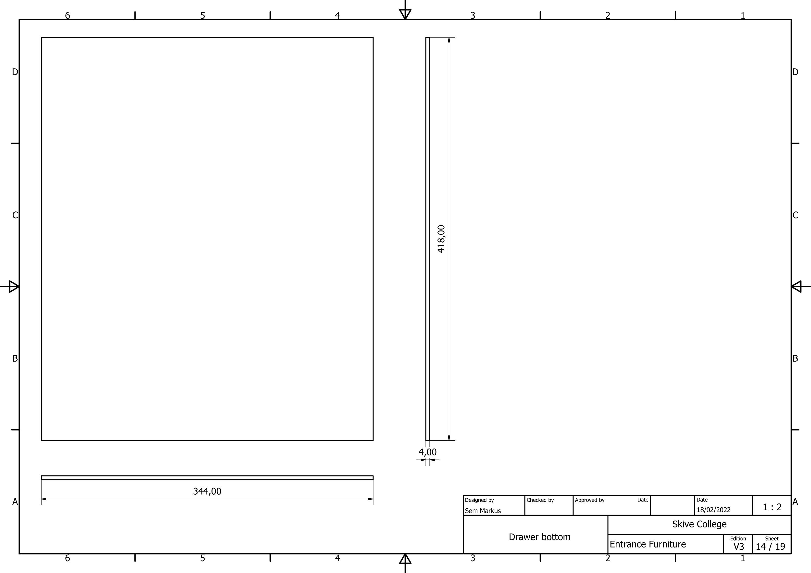
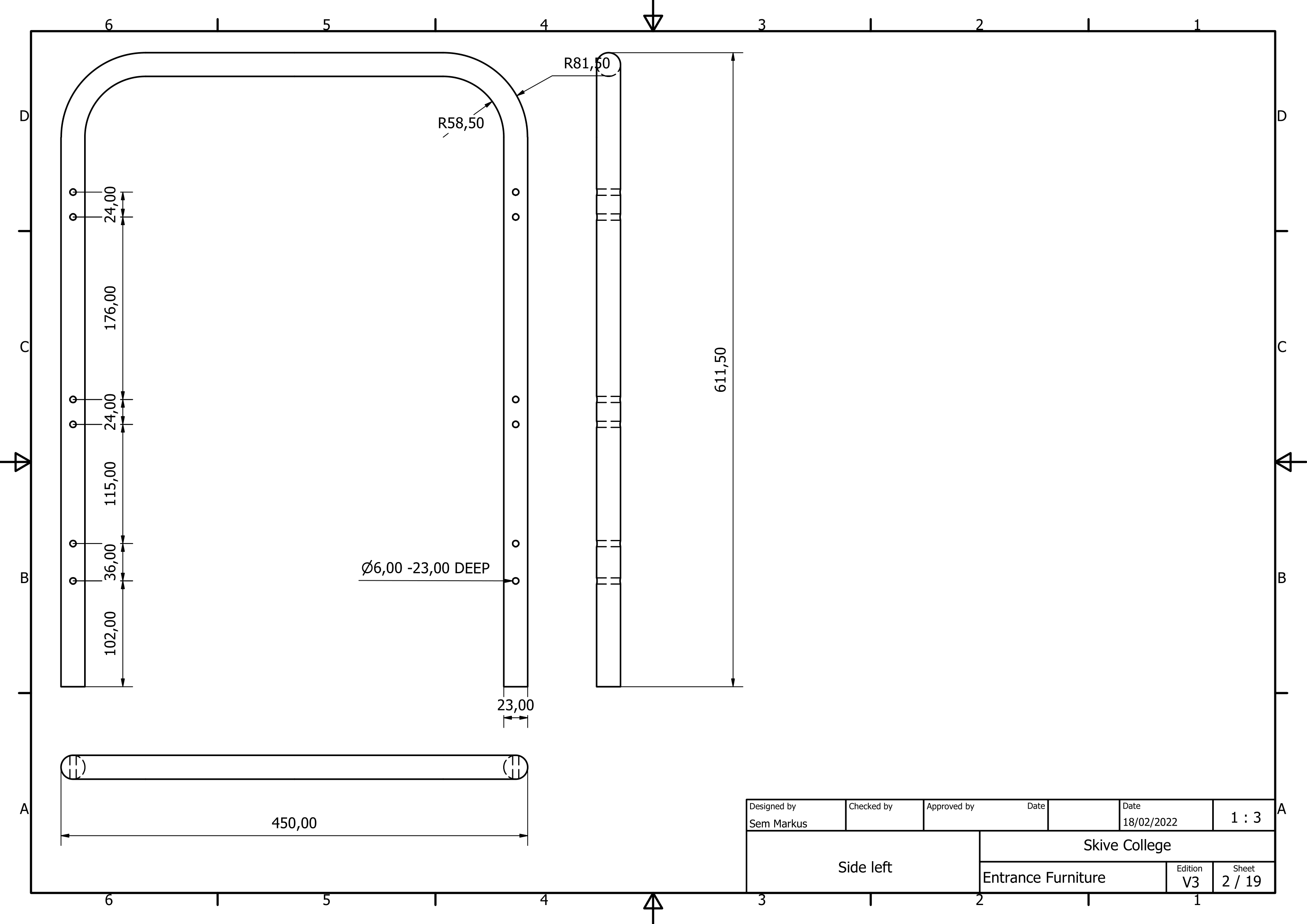
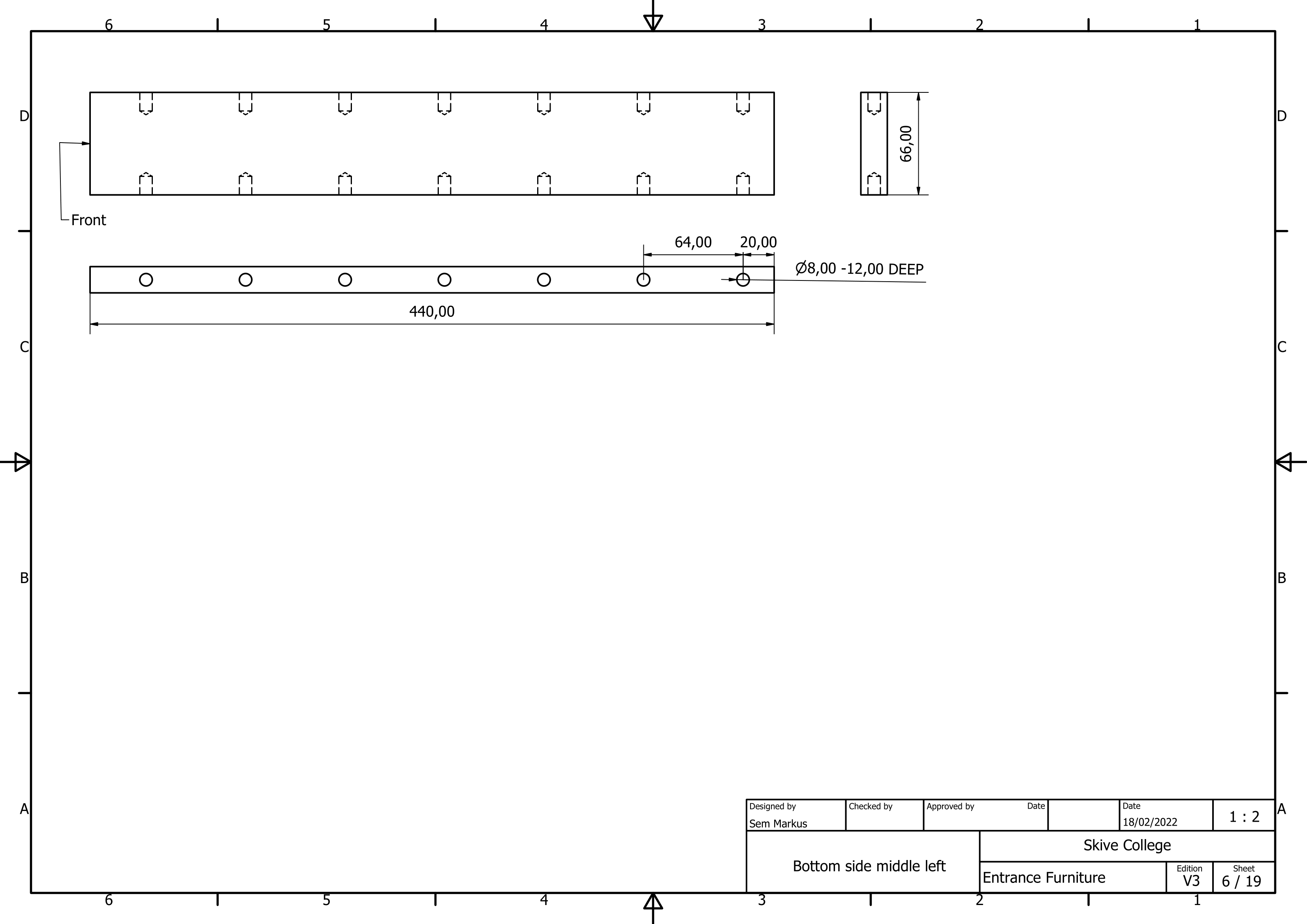
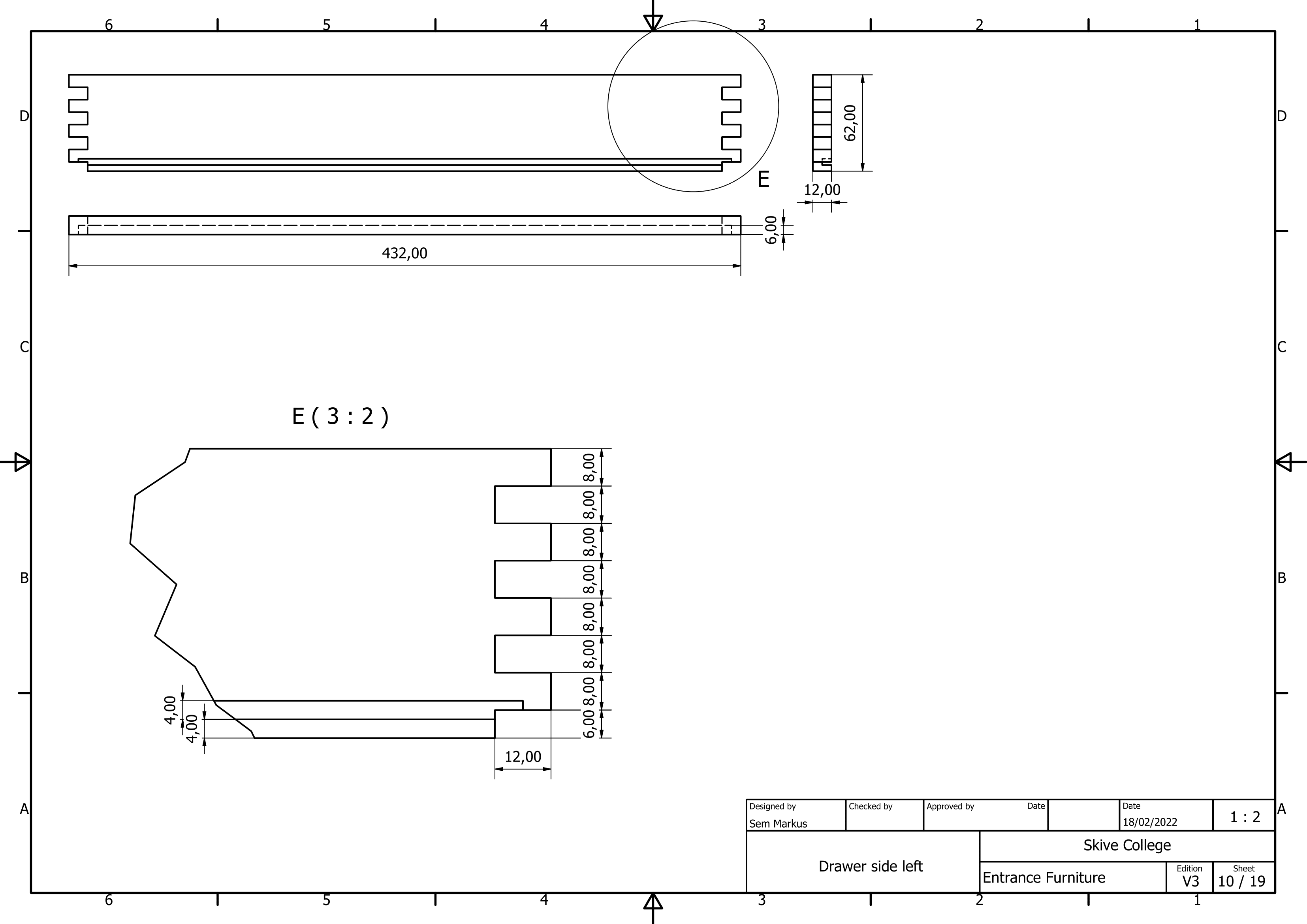
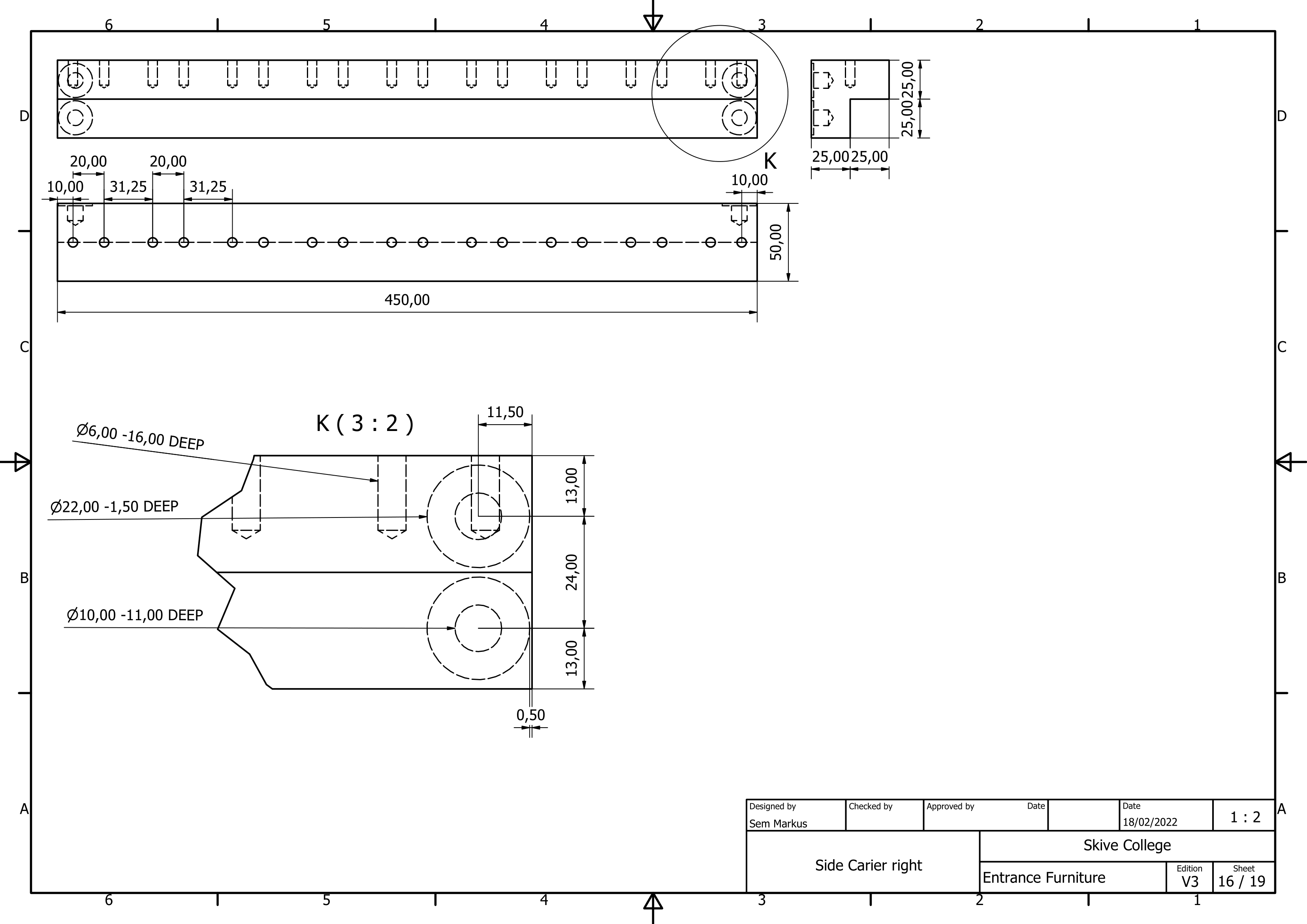
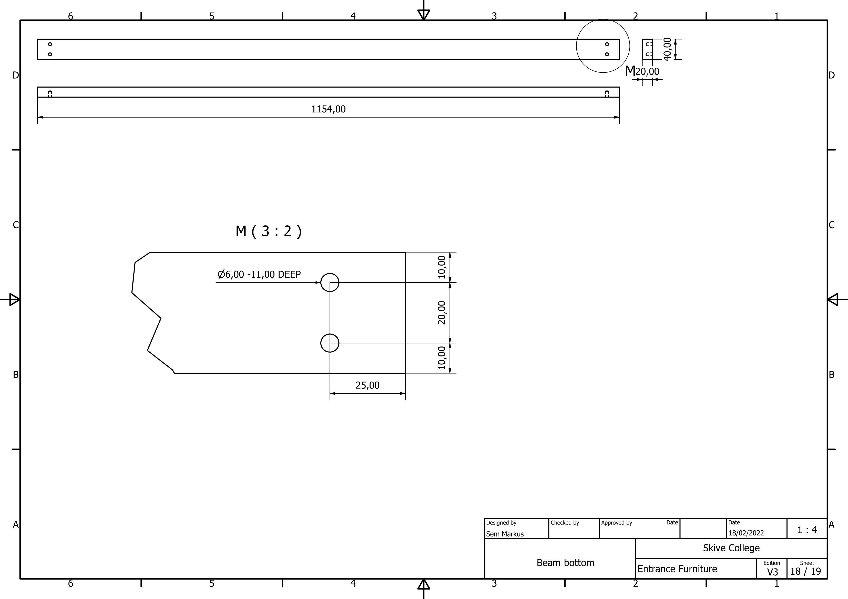
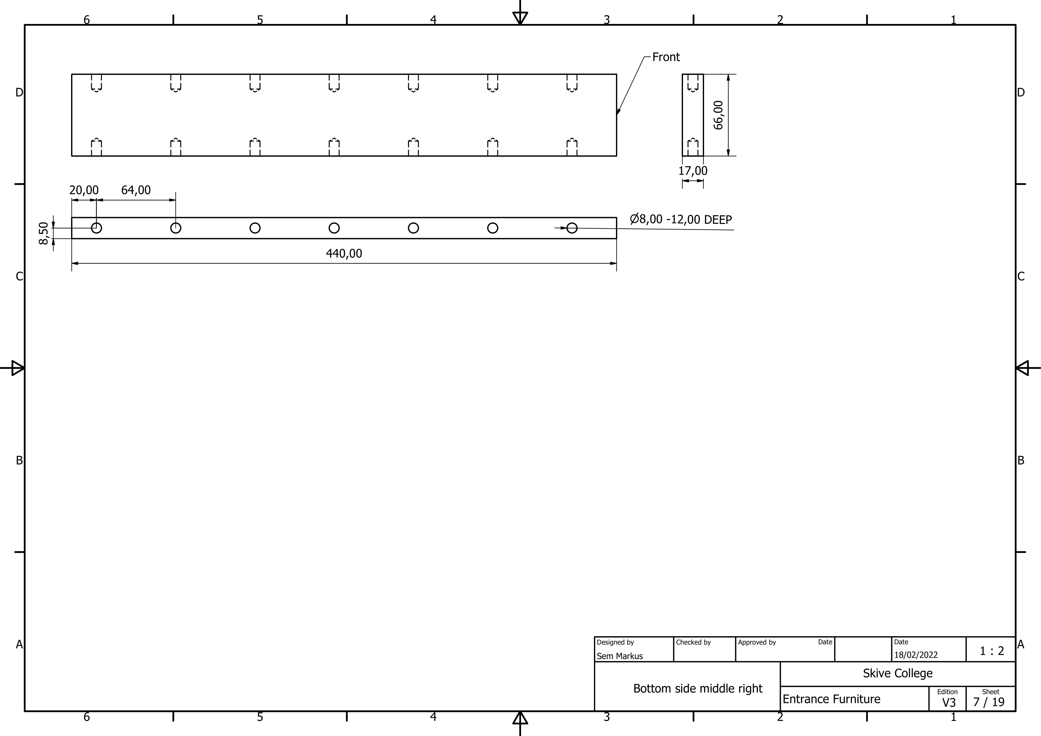
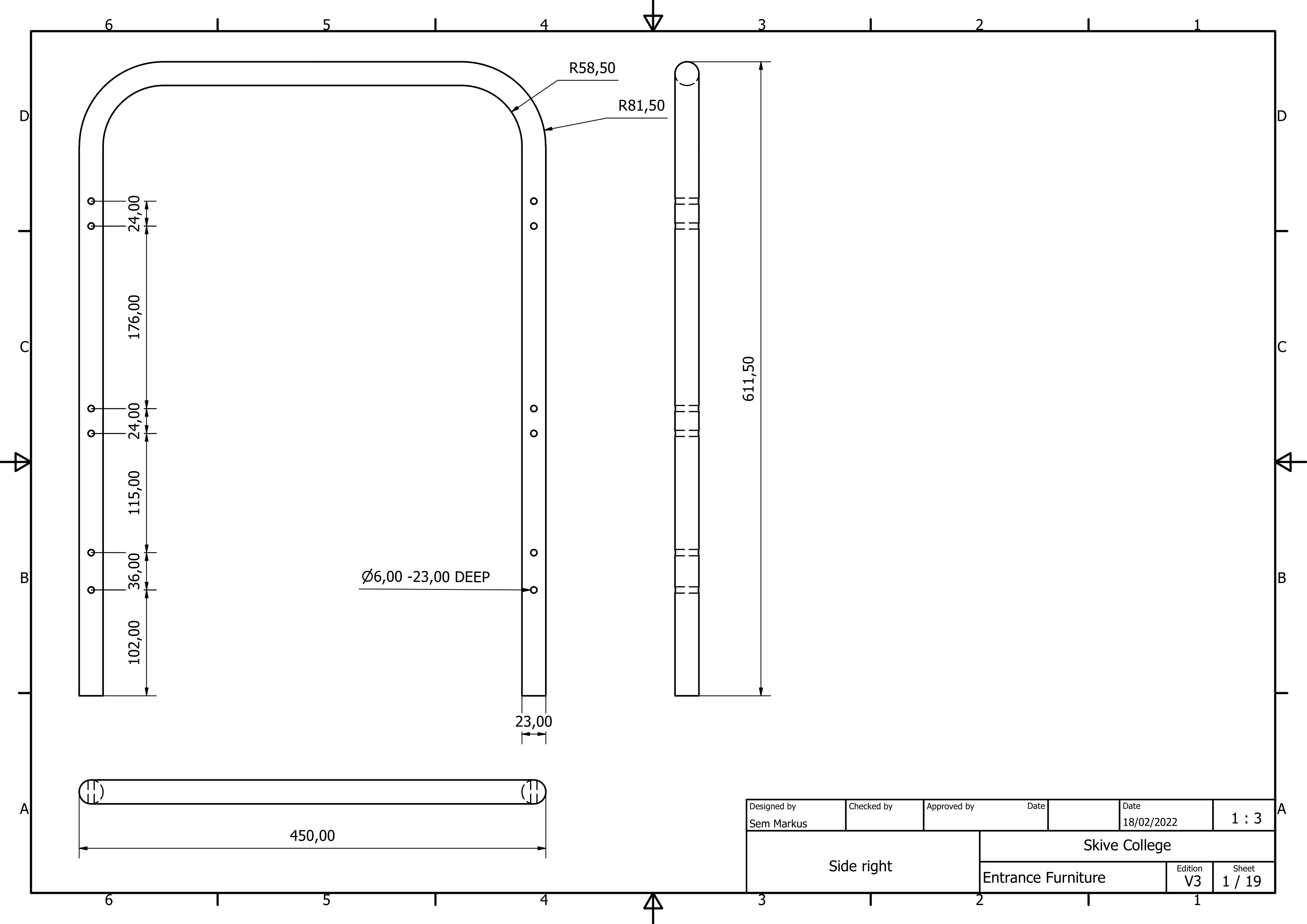
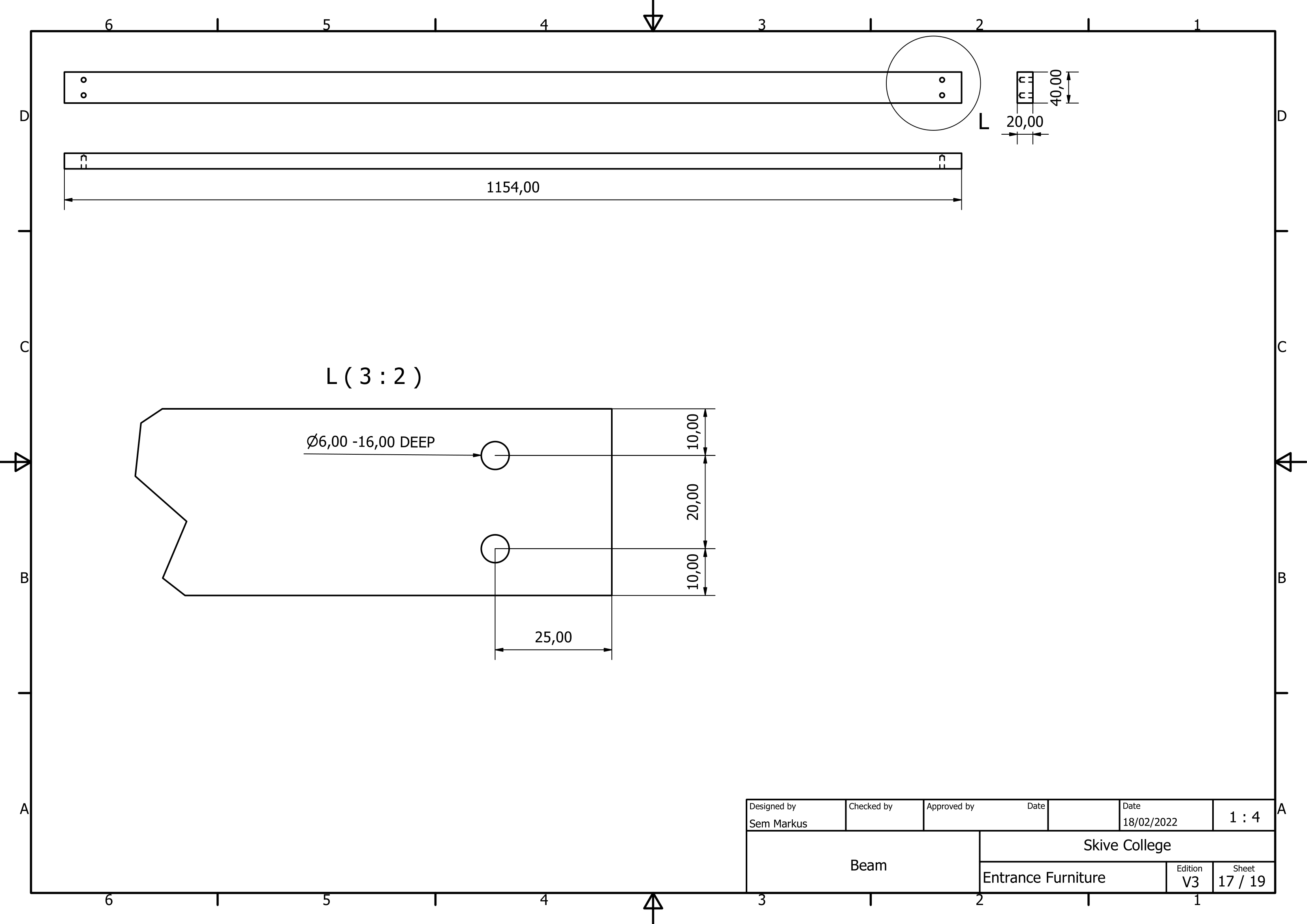
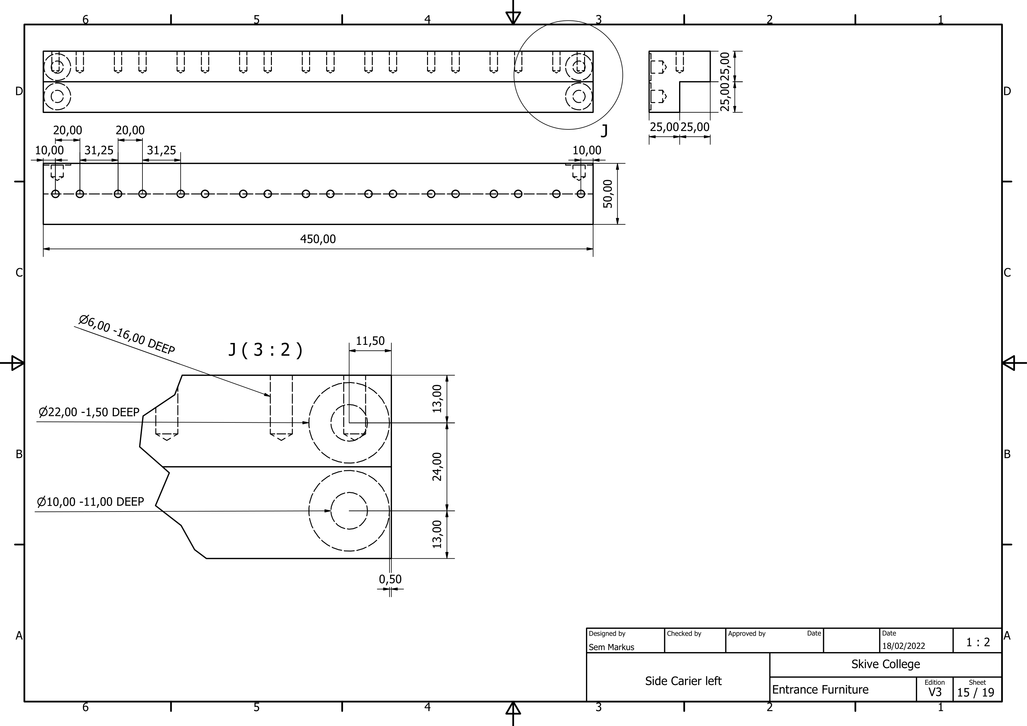
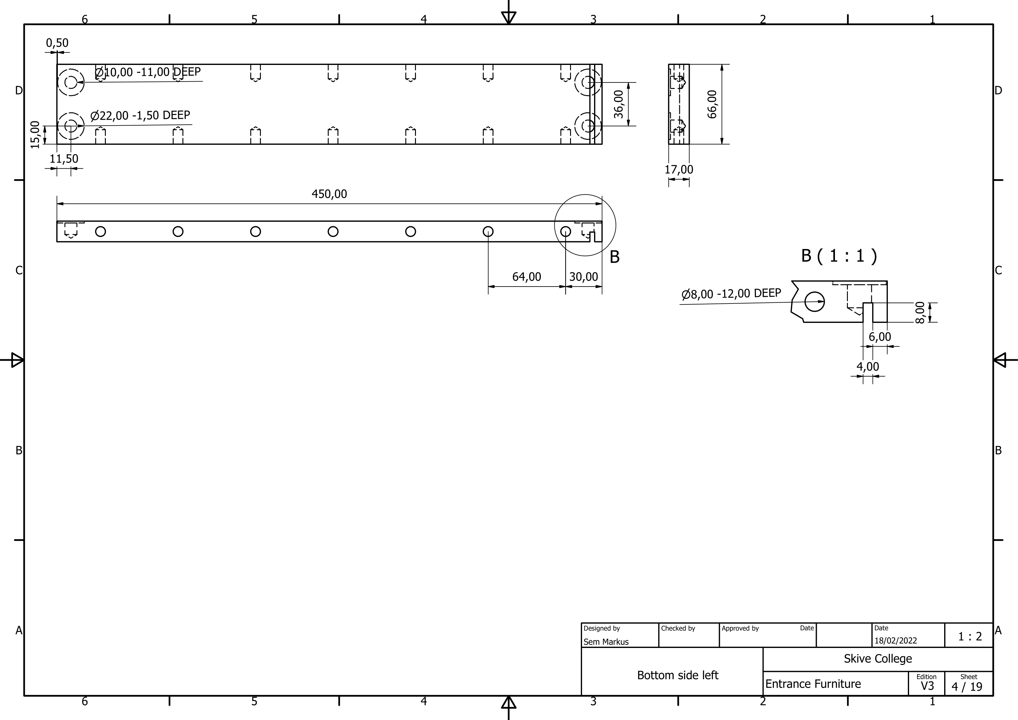
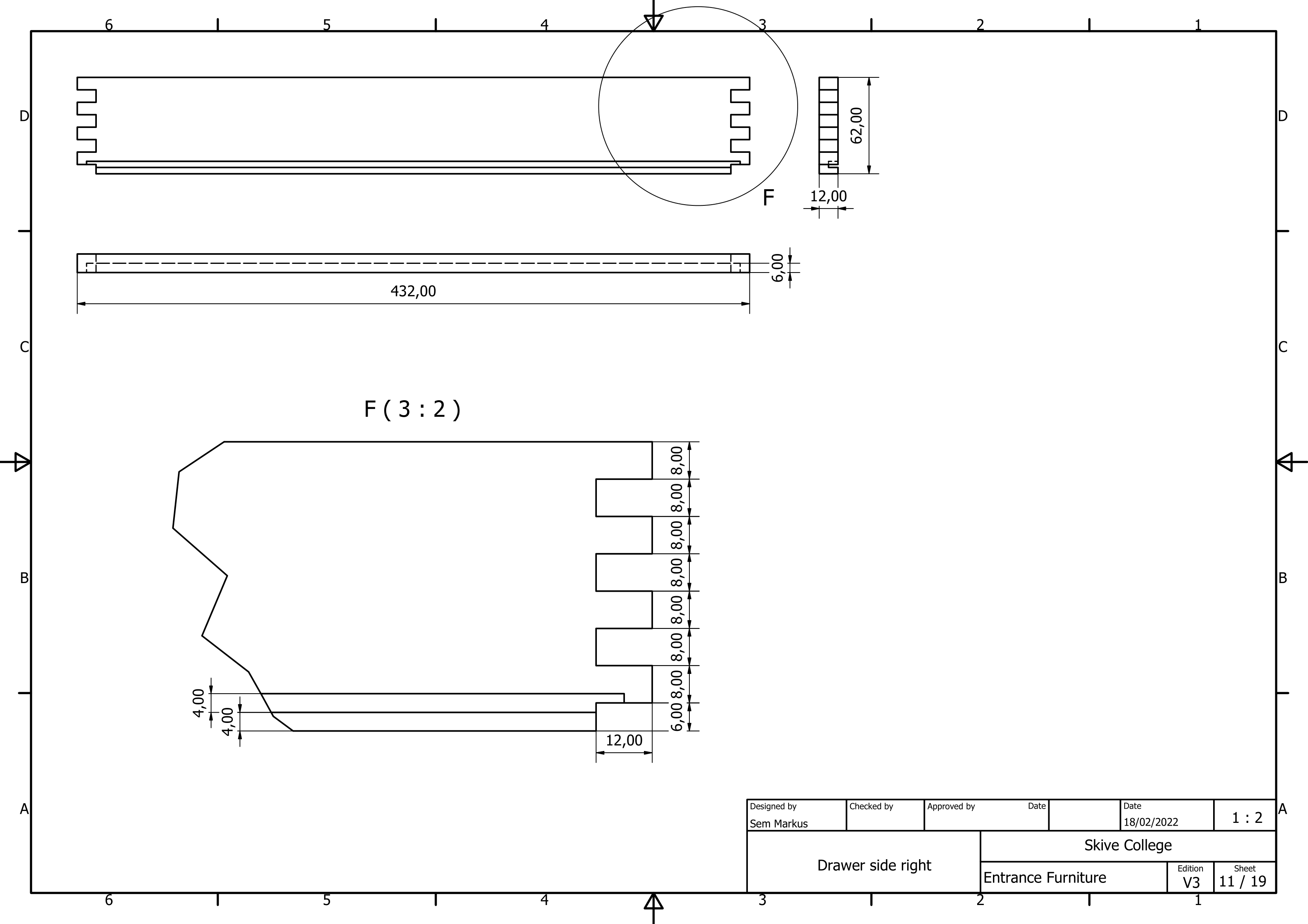
Dit zijn een aantal werktekeningen van een schoenen rekje die ik heb gemaakt op een uitwisselings traject in Denenmarken. Hieronder valt ook het las- en stofeerwerk.

werktekening werktekening werktekening werktekening werktekening werktekening werktekening werktekening werktekening werktekening

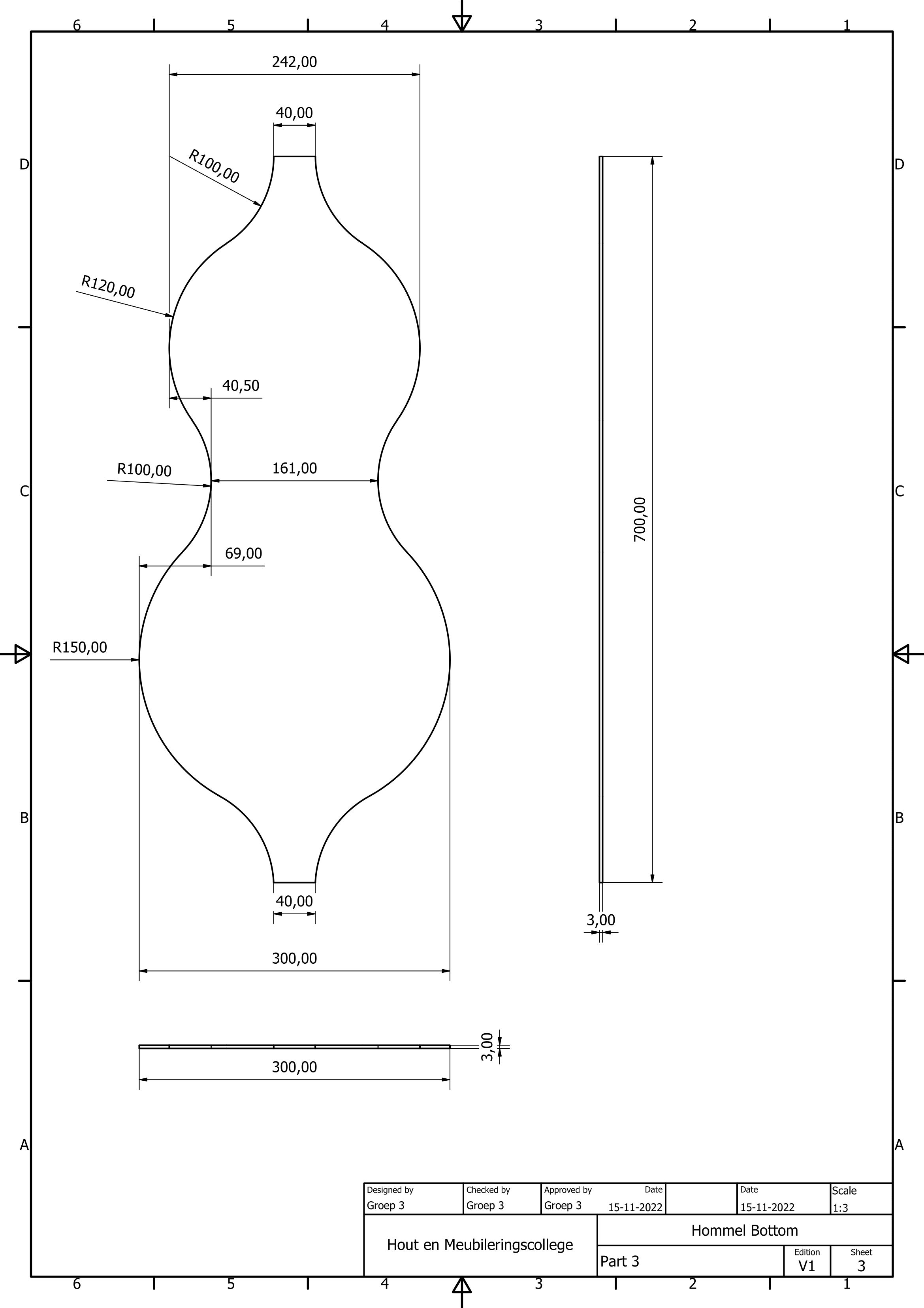
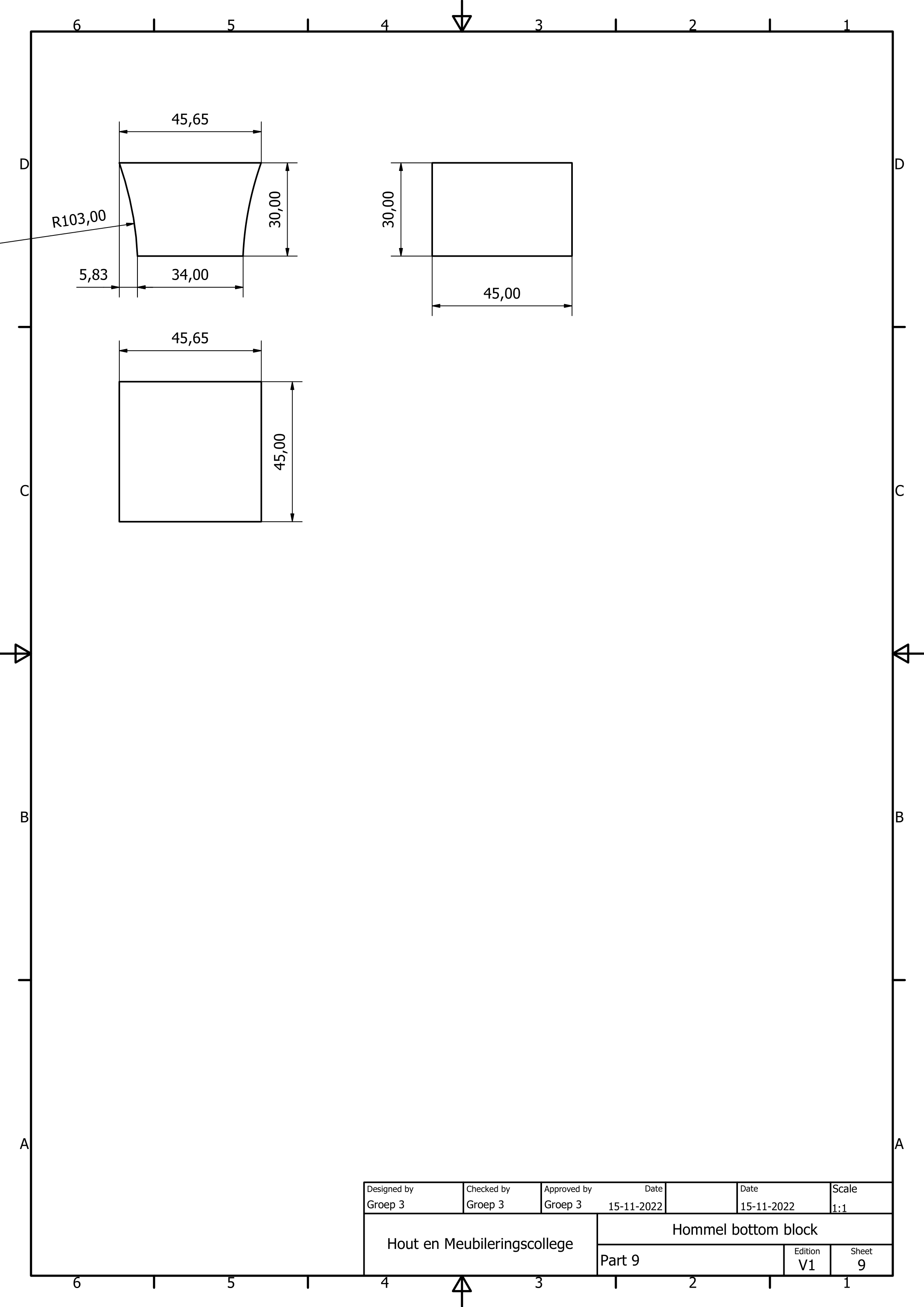
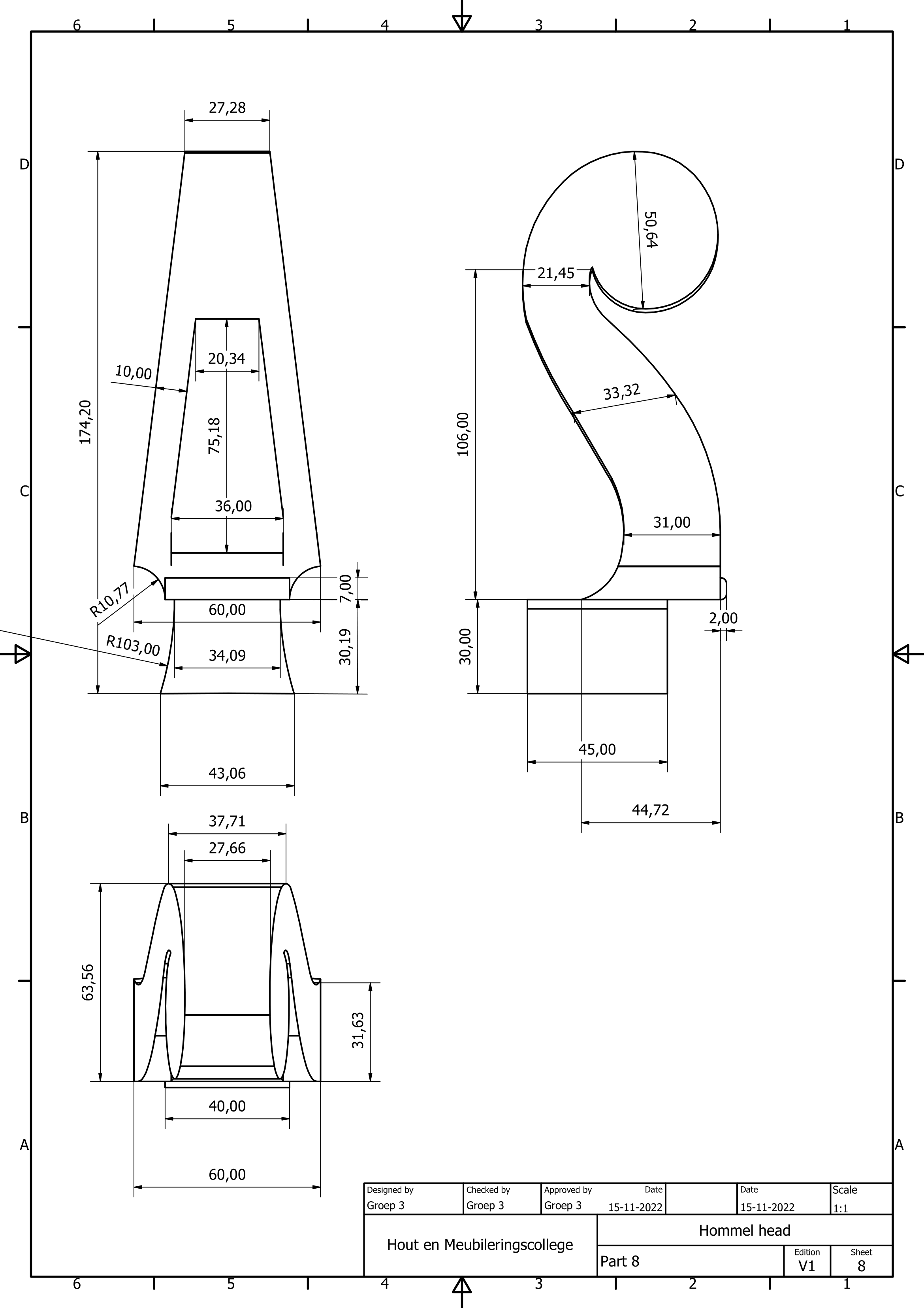
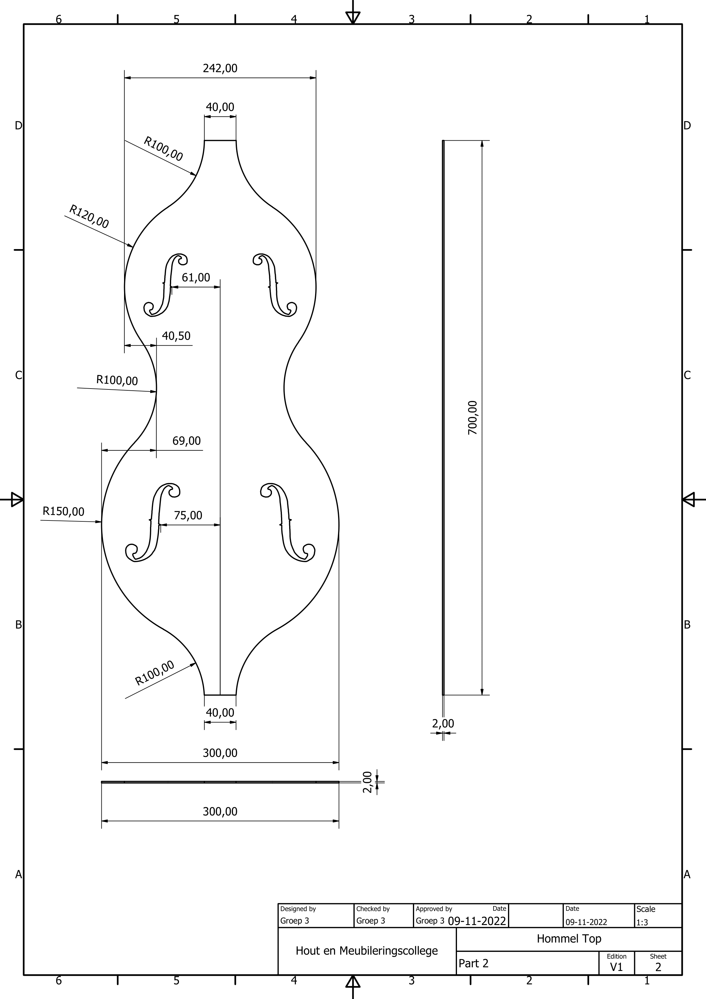
Dit zijn een aantal werktekeningen van een Mountain Dulcimer, dat is een traditioneel instrument dat ik in het 3e op het HMC heb gemaakt.

werktekening werktekening werktekening werktekening werktekening werktekening werktekening werktekening werktekening werktekening

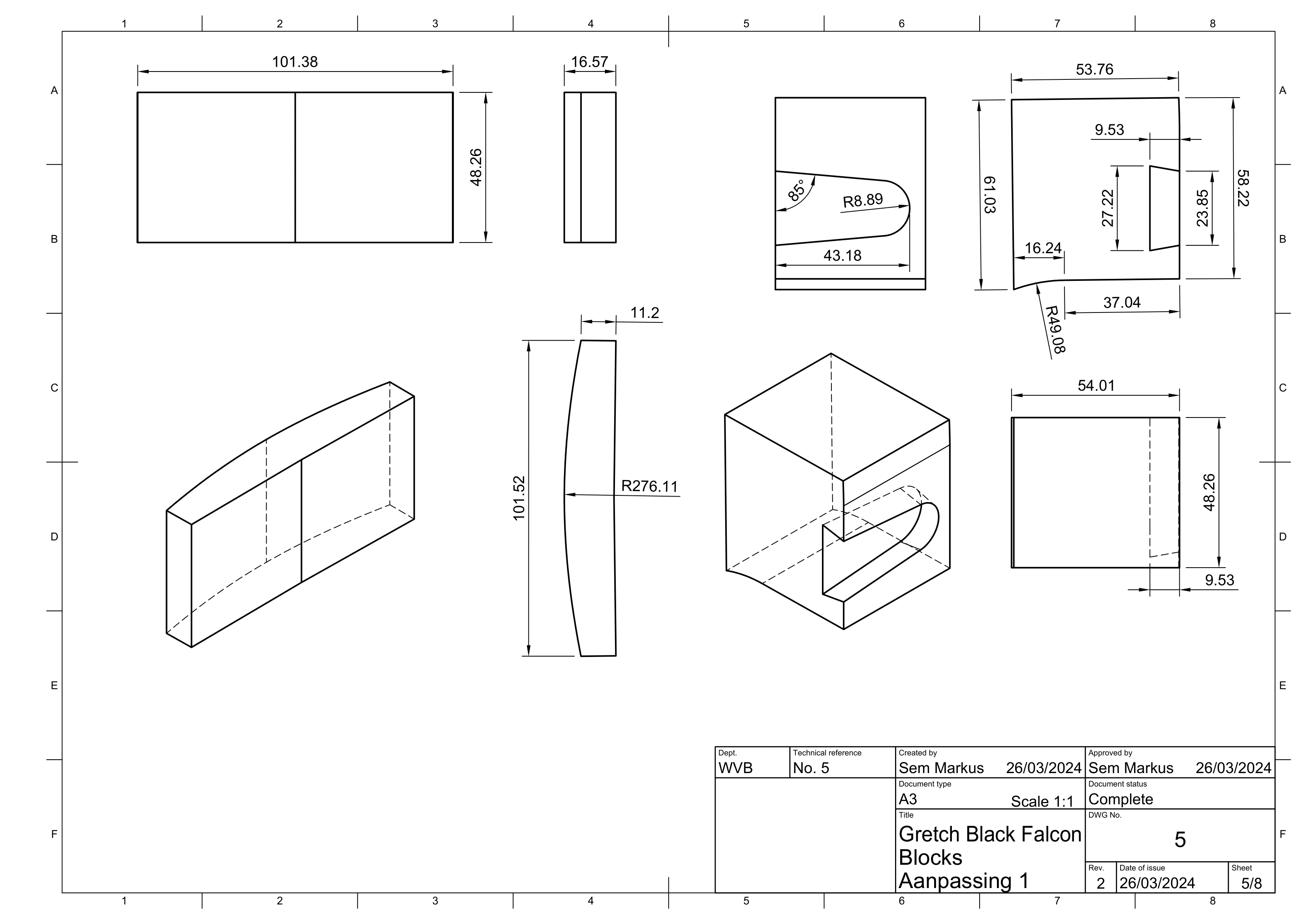
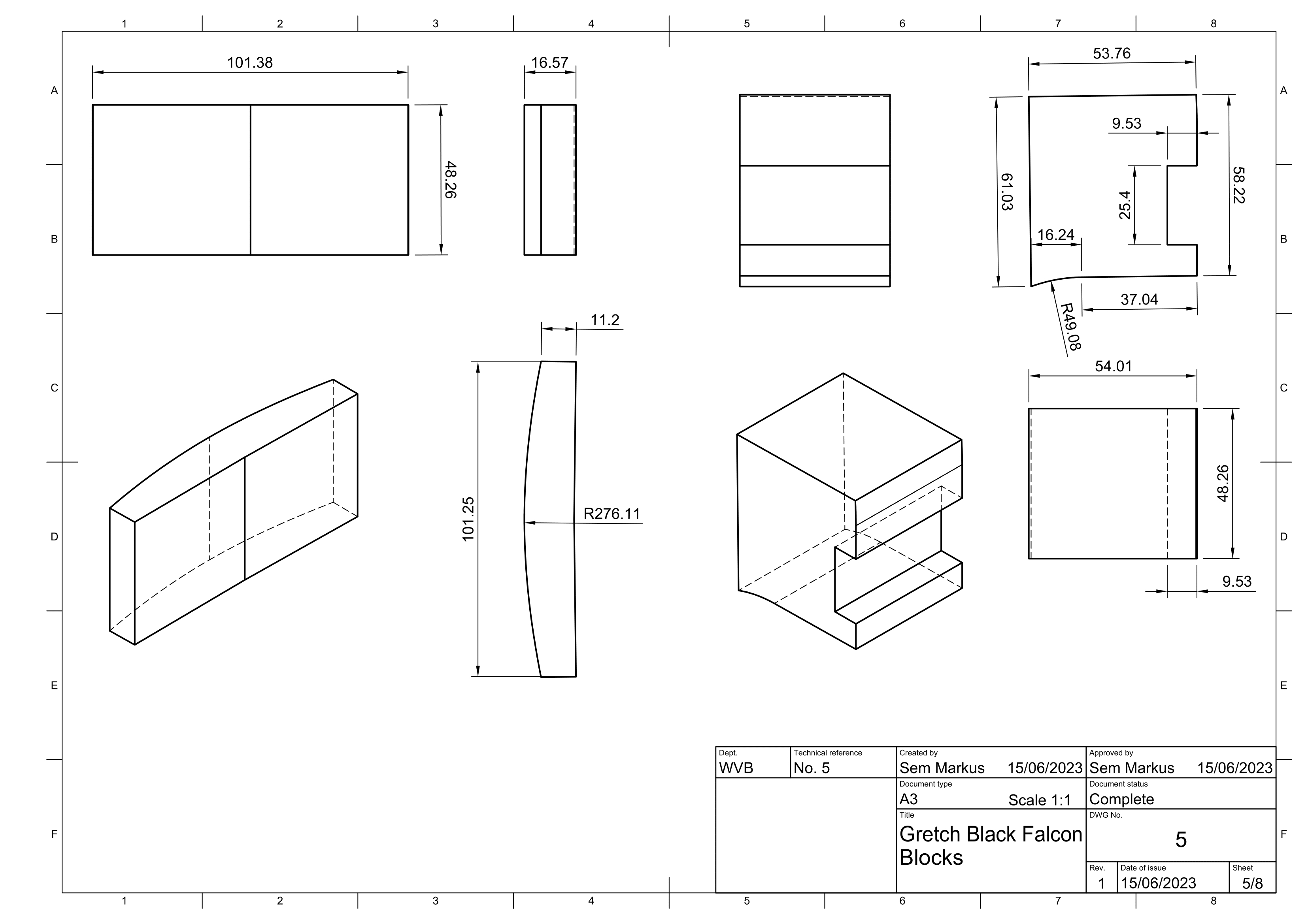
Dit zijn een aantal werktekeningen van een Gretsch White Falcon die ik heb gemaakt als mijn meesterstuk in het 4e jaar op het HMC.