Tuinhuisje

In de voorjaarsvakantie heb ik samen met met mijn zus en wat kennissen een aanbouw gebouwd voor haar tuinhuisje.

Dit is hoe het huisje er uit zag toen mijn zus het net gekocht had. Je kan hier vershillende kanten van het huisje zien en een paar onderdelen van de binnenkant. In de eennalaatste foto is de wc te zien en in de laatste foto is het matertaal te zien die wij hebben gekocht voor de uitbouw en veranda.

tuinhuisje
tuinhuisje tuinhuisje tuinhuisje tuinhuisje tuinhuisje tuinhuisje

Nadat ik alles had opgemeten van het huisje ben ik eerst begonnen met een ontwerp maken in Sketchup voor de uitbouw en de veranda. Het bijzondere aan dit ontwerp is dat we bij de aanbouw een soort lage 2e verdieping hebben gemaakt als slaapkamer zodat er beneden meer ruimte overblijft. De reden dat die 2e verdieping zo laag is, is dat de maximale hoogte van zo'n tuinhuisje maar 3,5 meter mag zijn.

tuinhuisje
tuinhuisje

Nadat ik het ontwerp in Sketchup had en het ontwerp was goedgekeurd ben ik begonnen met het ontwerp uit te tekenen in Adobe Illustrator zodat ik inzicht kreeg in de benodigde materialen. Die materialen heb ik weer in een Excel bestand gezet en een kosten analyse gemaakt.

De eerste stap van de aanbouw was een fundering leggen. We hebben een betonnen fundering gelegd en hebben toen de tijd het beton met de hand gemixed met een schep. Achteraf gezien is het wel waard om een zo'n betonmixer te huren voor iets zoals dit.

In de laatste foto is ook te zien dat we het oude raam uitzagen uit de oude muur zodat we het kunnen hergebruiken in de nieuwe muur.

tuinhuisje
tuinhuisje tuinhuisje tuinhuisje

Nadat het beton droog was en we de oude muur en kozijn er uit hadden gehaald konde we beginnen met het bouwen van de nieuwe muren. Omdat we een draagmuur weghalen hebben we een balk moeten plaatsen die het gewicht van het dak kon dragen. We hebben de muren eerst plat op de grond in elkaar geschroeft en daarna rechtop gezet en geankerd aan het beton en de oude muren. Toen het raamwerk van de muren aan alle kanten stond en het raam weer in de muur gezet hadden konden we de zijkanten vullen met OSB platen.

tuinhuisje
tuinhuisje tuinhuisje tuinhuisje tuinhuisje tuinhuisje tuinhuisje tuinhuisje tuinhuisje

Nadat de buitenmuren stonden konden we de steenwol in de muren plaatsen en de platen aan de binnenkant van de muren. Daarna konden we de vloer gaan plaatsen. De vloer bestaat uit 3 delen waarbij het eerste deel een onderplaat van isolatiemateriaal is, daarna underlayment platen en daarna grenen vloerplanken.

In de laatste foto is de veranda te zien. Daar heb ik helaas niet aan mee kunnen werken omdat ik toen niet meer in Nederland was maar naar mijn uitwisseling was naar Denemarken.

tuinhuisje
tuinhuisje tuinhuisje tuinhuisje tuinhuisje

Hier kan je zien dat het tuinhuisje zo goed als af is. Wat er nog vooral moet gebeuren is de tuin die aangepakt moet worden. In deze foto's is goed te zien hoe het huisje uiteindelijk is geworden aan de binnenkant met de muren geverfd en ingericht met spullen. Ook het dakraam dat we nog op de uitbouw hebben gezet kan je zien. En de wc is groter geworden en er staat nu ook een douche in.

tuinhuisje
tuinhuisje tuinhuisje tuinhuisje tuinhuisje tuinhuisje tuinhuisje

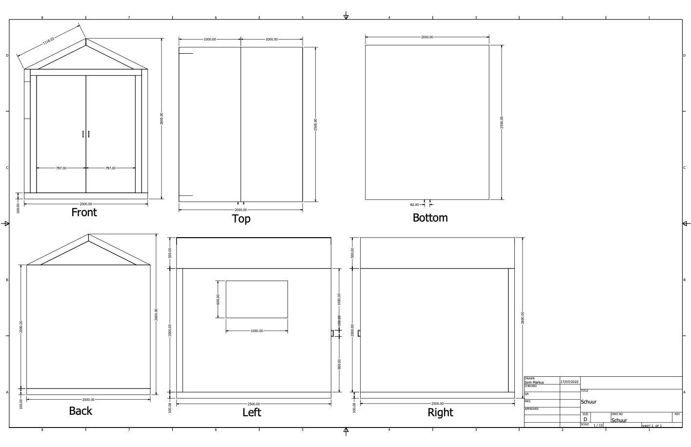
Later vroeg mijn zus of ik nog een schuurtje voor haar kon ontwerpen voor bij haar tuinhuisje. Dit is wat ik ontworpen heb in Sketchup. Het was belangrijk dat de doorgang breed was zodat ze makkelijk met haar fiets het schuurtje in en uit kan.

tuinhuisje
tuinhuisje

Nadat ik het schuurtje ontworpen had heb ik een werktekening van het schuurtje uitgewerkt in Inventor.